Loading
Cities

Neueste Beiträge der Stadtgemeinde

Zur Info:

Schließen Sie sich uns am Samstag, dem 21.03.2026, für eine Flurreinigung in Glasing an. Treffen Sie sich um 09:00 Uhr im Kulturhaus zur Einteilung der Gruppen. Die Reinigung endet spätestens um 09:30 Uhr. Anschließend treffen wir uns wieder im Kulturhaus zu einer kleinen Jause und einem Getränk.

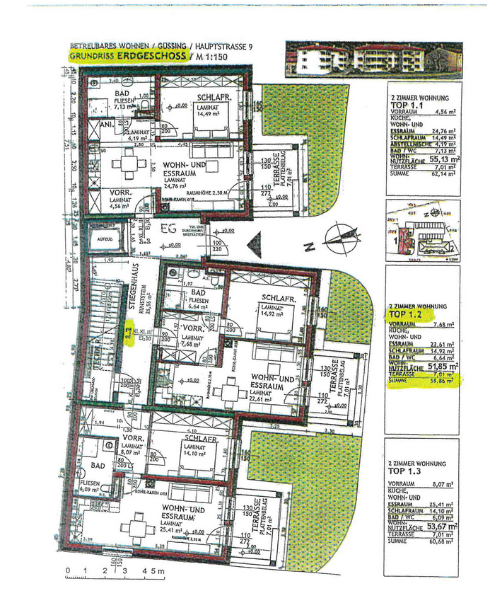
Ab sofort zur Miete möglich - Betreubares Wohnen in Güssing!

Im Zentrum von Güssing (Hauptstraße 9) steht eine behindertengerechte Wohnung im Erdgeschoss mit Wohnzimmer, Schlafzimmer, Küche, Abstellraum, Bad, WC, Terrasse mit 52qm zur Verfügung.

Einbauküche mit Kühlschrank und Herd, Dunstabzug. Bad mit rollstuhlgerecher Dusche, behindertengerechter Waschtisch, Anschluss für Waschmaschine. 1 PKW Abstellplatz.

Heizung: Fernwärmeanschluss.

Infos auch unter https://www3.komsis.at/immobilie/wohnen/7540/gussing/34444.htm?

Ihre Anfrage richten Sie bitte an die Stadtgemeinde Güssing telefonisch unter 03322 42311 13 oder per Mail an post@guessing.bgld.gv.at

Das Bild zeigt einen Grundriss von Wohnappartements mit Plänen für die oberen drei Etagen. Jeder Grundriss zeigt die Raumaufteilung, Abmessungen und Wohnbereiche. Etage 1.1 hat zwei Räume, während die Etagen 1.2 und 1.3 jeweils einen Raum haben. Die Abmessungen und Flächenangaben sind für jeden Raum angegeben.
Eine 3D-Darstellung eines Wohnkomplexes mit mehreren Gebäuden, darunter ein Haupthaus mit rotem Dach und einem Parkplatz mit mehreren geparkten Autos. Der Komplex ist von Bäumen und Grünflächen umgeben.

🔥𝐃𝐞𝐫 𝐖ä𝐫𝐦𝐞𝐩𝐫𝐞𝐢𝐬-𝐃𝐞𝐜𝐤𝐞𝐥 𝐰𝐮𝐫𝐝𝐞 𝐟ü𝐫 𝐝𝐚𝐬 𝐉𝐚𝐡𝐫 𝟐𝟎𝟐𝟔 𝐯𝐞𝐫𝐥ä𝐧𝐠𝐞𝐫𝐭. 🔥👉Einreichungen können ab 1. April 2026 durchgeführt werden und sind bis 31. Dezember 2026 möglich. Alle Infos zum Wärmepreisdeckel 2026 finden Sie auf der Website der Stadtgemeinde Güssinge >> https://www.guessing.eu/index.php/news/958-waermepreisdeckel-2026

Das Bild zeigt die Flagge der Region Burgenland in Österreich mit einem roten, gelben und schwarzen Farbschema. Der Text 'Land Burgenland' ist in Fettschrift unter der Flagge angezeigt.

🦋🌞🍃Herzliche Einladung zur Flurreinigung in Urbersdorf

Plakat für lokale Gemeinschaftsreinigungsaktion. Geplant für Samstag, 21. März 2026. Zeit ist 9:00 Uhr. Treffpunkt ist die Feuerwehr. Essen und Getränke sind vorhanden.

👉𝐓𝐢𝐩𝐩 𝐟ü𝐫 𝐤𝐨𝐦𝐦𝐞𝐧𝐝𝐞𝐧 𝐒𝐨𝐧𝐧𝐭𝐚𝐠, 𝟐𝟐. 𝐌ä𝐫𝐳 𝟐𝟎𝟐𝟔, 𝟎𝟗:𝟑𝟎 𝐛𝐢𝐬 𝟏𝟏 𝐔𝐡𝐫
📌Schachblumenwiese Hagensdorf
Anmeldung unter office@weinidylle.at oder 03324 6318

Plakat für einen botanischen Spaziergang am 22. März 2026 mit Blumen und Pflanzen mit grünen Blättern. Kontaktinformationen und ein QR-Code für die Anmeldung sind vorhanden.

🎹𝐌𝐮𝐬𝐢𝐤𝐚𝐥𝐢𝐬𝐜𝐡𝐞 𝐖𝐞𝐥𝐭𝐤𝐥𝐚𝐬𝐬𝐞 𝐢𝐧 𝐆ü𝐬𝐬𝐢𝐧𝐠: 𝐉𝐚𝐳𝐳-𝐃𝐮𝐨 𝐁𝐫𝐞𝐦𝐞𝐫/𝐌𝐜𝐂𝐨𝐲 𝐥𝐢𝐯𝐞
📅Donnerstag, 19.3.2026, ⏰20:00, 📌Stadtsaal Güssing
👉Der Kulturverein Zuilousn bringt das dänische Duo Bremer/McCoy nach Güssing! Im Rahmen ihrer Europatournee 2026 gastieren die Ausnahmemusiker neben Metropolen wie London, Mailand und Wien auch im Stadtsaal Güssing. Erleben Sie ein faszinierendes Zusammenspiel von Kontrabass und Piano: Ihr Sound ist ehrlich, intensiv und entsteht in packender Improvisation direkt auf der Bühne. Mit über 600.000 Hörern auf Spotify und ihrem neuesten Album auf dem Kult-Label Luaka Bop sind die beiden ehemaligen Schulkollegen auf dem besten Weg, internationale Stars zu werden. Ein Muss für Fans anspruchsvoller, handgemachter Musik!

Donnerstag, 19.3.2026, 20:00, Stadtsaal Güssing

Eintritt: 15 EUR, Ticketreservierungen werden mit dem QR-Code bzw. unter zuilousn@gmail.com entgegengenommen!

Ein Plakat für ein Konzert von Bremer/McCoy (DK) am 19. März 2026 um 20:00. Zwei Männer stehen in einem nebligen Wald. Der Eintritt beträgt EUR 15.

🦋🍃🌞𝐅𝐥𝐮𝐫𝐫𝐞𝐢𝐧𝐢𝐠𝐮𝐧𝐠 𝐢𝐧 𝐑𝐨𝐬𝐞𝐧𝐛𝐞𝐫𝐠
Vor kurzem fand bei Sonnenschein und Wind die Flurreinigung in Rosenberg statt. Zahlreiche Rosenbergerinnen und Rosenberger beteiligten sich und leisteten einen wichtigen Beitrag für eine saubere Umwelt. Nach getaner Arbeit klang der Nachmittag bei einer gemeinsamen Jause und guten Gesprächen gemütlich aus. Ein herzliches Dankeschön an alle Helferinnen und Helfer für ihren Einsatz!

Eine Gruppe von Menschen posiert für ein Foto im Freien mit einer Kirche und einem Baum im Hintergrund, einige mit Schaufeln und andere auf Schubkarren sitzend.

Herzliche Einladung zur Passionsmusik in der Basilika Güssing, am Sonntag, 22. März 2026 um 17:00 Uhr. Einführende Worte: Pater Anton Bruck OFM.

Das Bild ist ein Plakat für eine Passionsmusik-Veranstaltung in einer Basilika am 22. März 2026. Aufgeführte Komponisten sind Bruckner, Bach, Franz, Haydn, Heitzmann und Stangl. Die Veranstaltung mit Stadtchor Gussing und Dr. Katharina Furpass an der Orgel wird von Dir. Franz Stangl musikalisch geleitet.

🏰 Vor kurzem auf Burg Güssing eröffnet: VIELE BLICKE, EINE BURG 🏰
In der Sonderausstellung „Viele Blicke, eine Burg – Fotografische Perspektiven auf Burg Güssing“ präsentieren fünf Fotografen ihre ganz persönlichen Sichtweisen auf das historische Wahrzeichen.

Mit Arbeiten von Ernst Breitegger, Robert Brünner, Ossy Hager, Erwin Muik und Martin Pfeiffer.

📍 Burg Güssing

🗓 Ausstellung: 14. März bis 31. Oktober 2026
🕙 Dienstag bis Sonntag, 10:00–17:00 Uhr
(Montag geöffnet, wenn Montag oder Dienstag ein Feiertag ist)

#BurgGüssing #Fotoausstellung #VieleBlickeEineBurg #KulturBurgenland #Sonderausstellung #Fotografie #KunstUndKultur #Güssing

Eine Gruppe von Männern und Frauen steht in einer Kunstgalerie und lächelt für ein Foto. Einige tragen Brillen, Schals und formelle Kleidung. Kunstwerke hängen an den Wänden hinter ihnen.
Drei Männer stehen in einer Kunstgalerie mit gefliesten Böden, tragen Jacken und Brillen. Sie stehen vor zwei großen Gemälden an der Wand, eines zeigt eine Stadt bei Nacht und das andere eine Burg in der Ferne.
Eine Gruppe von Menschen steht in einer Kunstgalerie, einige lächeln und diskutieren die Gemälde an der Wand. Ein Mann hält ein Weinglas.
Drei Personen stehen vor einem großen gerahmten Bild an einer weißen Wand, das eine Stadtlandschaft unter einem Nachthimmel zeigt.+3

👉🐣🐂🍀𝐆𝐫𝐞𝐞𝐧 𝐂𝐚𝐫𝐞 – 𝐆𝐥ü𝐜𝐤𝐬𝐛𝐫𝐢𝐧𝐠𝐞𝐫 𝐋𝐚𝐧𝐝𝐰𝐢𝐫𝐭𝐬𝐜𝐡𝐚𝐟𝐭

👉Die Initiative „Green Care“ macht auf aktiven landwirtschaftlichen Betrieben Kinder bis Senior:innen sowie Menschen, die Auszeit suchen bis hin zu Menschen mit Behinderungen glücklich.

👉Green Care baut eine Brücke zwischen der Land- & Forstwirtschaft und der Bevölkerung. Die Initiative unterstützt – in Zusammenarbeit mit der öffentlichen Hand und Sozialträgern – Landwirt:innen, ihre soziale Kompetenzen auszubauen, sinnstiftende Aufgaben auf ihren Betrieben zu implementieren und damit den Zusammenhalt im ländlichen Raum zu erhöhen.
👉Alle weiteren Infos und Kontakte zu diesem Projekt finden Sie auf der Website der Stadtgemeinde Güssing unter https://www.guessing.co.at/index.php/news/1156-green-care-gluecksbringer-landwirtschaft

Green Care-Plakat zeigt eine Frau, die nach einem Baum greift, mit dem Text 'Neue Perspektiven für Bauernhöfe und Gemeinden'. Green Care verbindet Landwirtschaft mit sozialer Betreuung, bietet qualifizierte Betreuung für Senioren, tiergestützte Aktivitäten und herausfordernde Aufgaben für Landwirte. Es schafft Mehrwert für Gemeinden durch mehr Betreuung, Beschäftigung und Zusammenhalt.

Sonntagsfrühstück am 29. März 2026 — Verwöhne dich mit unserem regionalen Frühstücksbuffet 🌱✨ Wann: 09:00–14:00 Uhr Wo: Biohofgut Laschalt, Langer Berg, 7572 Rohrbrunn. Frische, saisonale Zutaten und nachhaltiger Genuss warten auf dich. Bringe Familie & Freunde mit und starte den Sonntag genussvoll! Jetzt reservieren www.biohofgut.at oder Tel:0664 1252788

Eine Hand hält eine Gabel in der Nähe eines Käsetellers mit Trauben, Nüssen und verschiedenen Käsesorten auf einem Holztablett. In der Nähe ein Dip-Schälchen mit weißer Soße und eine Glasglocke mit Fleisch.
Eine Person trägt ein graues Kochschürze mit LASCHALT Biohofgut darauf. Sie kocht und hält ein Ei in den Händen.
Ein Mann in einer 'LASCHALT Biohofgut' Schürze hält einen weißen Teller mit verschiedenen Fleischsorten. Im Hintergrund befinden sich Holzmöbel.
Eine Frau in einer Schürze hält einen Tablett mit Essen auf einer Holzterrasse mit Stühlen und Pflanzen im Hintergrund.
v1_migrated_image_3989463
Güssing

Zur Info:

Schließen Sie sich uns am Samstag, dem 21.03.2026, für eine Flurreinigung in Glasing an. Treffen Sie sich um 09:00 Uhr im Kulturhaus zur Einteilung der Gruppen. Die Reinigung endet spätestens um 09:30 Uhr. Anschließend treffen wir uns wieder im Kulturhaus zu einer kleinen Jause und einem Getränk.

Ab sofort zur Miete möglich - Betreubares Wohnen in Güssing!

Im Zentrum von Güssing (Hauptstraße 9) steht eine behindertengerechte Wohnung im Erdgeschoss mit Wohnzimmer, Schlafzimmer, Küche, Abstellraum, Bad, WC, Terrasse mit 52qm zur Verfügung.

Einbauküche mit Kühlschrank und Herd, Dunstabzug. Bad mit rollstuhlgerecher Dusche, behindertengerechter Waschtisch, Anschluss für Waschmaschine. 1 PKW Abstellplatz.

Heizung: Fernwärmeanschluss.

Infos auch unter https://www3.komsis.at/immobilie/wohnen/7540/gussing/34444.htm?

Ihre Anfrage richten Sie bitte an die Stadtgemeinde Güssing telefonisch unter 03322 42311 13 oder per Mail an post@guessing.bgld.gv.at

Das Bild zeigt einen Grundriss von Wohnappartements mit Plänen für die oberen drei Etagen. Jeder Grundriss zeigt die Raumaufteilung, Abmessungen und Wohnbereiche. Etage 1.1 hat zwei Räume, während die Etagen 1.2 und 1.3 jeweils einen Raum haben. Die Abmessungen und Flächenangaben sind für jeden Raum angegeben.
Eine 3D-Darstellung eines Wohnkomplexes mit mehreren Gebäuden, darunter ein Haupthaus mit rotem Dach und einem Parkplatz mit mehreren geparkten Autos. Der Komplex ist von Bäumen und Grünflächen umgeben.
Amtliche Mitteilung

🔥𝐃𝐞𝐫 𝐖ä𝐫𝐦𝐞𝐩𝐫𝐞𝐢𝐬-𝐃𝐞𝐜𝐤𝐞𝐥 𝐰𝐮𝐫𝐝𝐞 𝐟ü𝐫 𝐝𝐚𝐬 𝐉𝐚𝐡𝐫 𝟐𝟎𝟐𝟔 𝐯𝐞𝐫𝐥ä𝐧𝐠𝐞𝐫𝐭. 🔥👉Einreichungen können ab 1. April 2026 durchgeführt werden und sind bis 31. Dezember 2026 möglich. Alle Infos zum Wärmepreisdeckel 2026 finden Sie auf der Website der Stadtgemeinde Güssinge >> https://www.guessing.eu/index.php/news/958-waermepreisdeckel-2026

Das Bild zeigt die Flagge der Region Burgenland in Österreich mit einem roten, gelben und schwarzen Farbschema. Der Text 'Land Burgenland' ist in Fettschrift unter der Flagge angezeigt.

🦋🌞🍃Herzliche Einladung zur Flurreinigung in Urbersdorf

Plakat für lokale Gemeinschaftsreinigungsaktion. Geplant für Samstag, 21. März 2026. Zeit ist 9:00 Uhr. Treffpunkt ist die Feuerwehr. Essen und Getränke sind vorhanden.
v1_migrated_image_3989463
Güssing

👉𝐓𝐢𝐩𝐩 𝐟ü𝐫 𝐤𝐨𝐦𝐦𝐞𝐧𝐝𝐞𝐧 𝐒𝐨𝐧𝐧𝐭𝐚𝐠, 𝟐𝟐. 𝐌ä𝐫𝐳 𝟐𝟎𝟐𝟔, 𝟎𝟗:𝟑𝟎 𝐛𝐢𝐬 𝟏𝟏 𝐔𝐡𝐫
📌Schachblumenwiese Hagensdorf
Anmeldung unter office@weinidylle.at oder 03324 6318

Plakat für einen botanischen Spaziergang am 22. März 2026 mit Blumen und Pflanzen mit grünen Blättern. Kontaktinformationen und ein QR-Code für die Anmeldung sind vorhanden.

🎹𝐌𝐮𝐬𝐢𝐤𝐚𝐥𝐢𝐬𝐜𝐡𝐞 𝐖𝐞𝐥𝐭𝐤𝐥𝐚𝐬𝐬𝐞 𝐢𝐧 𝐆ü𝐬𝐬𝐢𝐧𝐠: 𝐉𝐚𝐳𝐳-𝐃𝐮𝐨 𝐁𝐫𝐞𝐦𝐞𝐫/𝐌𝐜𝐂𝐨𝐲 𝐥𝐢𝐯𝐞
📅Donnerstag, 19.3.2026, ⏰20:00, 📌Stadtsaal Güssing
👉Der Kulturverein Zuilousn bringt das dänische Duo Bremer/McCoy nach Güssing! Im Rahmen ihrer Europatournee 2026 gastieren die Ausnahmemusiker neben Metropolen wie London, Mailand und Wien auch im Stadtsaal Güssing. Erleben Sie ein faszinierendes Zusammenspiel von Kontrabass und Piano: Ihr Sound ist ehrlich, intensiv und entsteht in packender Improvisation direkt auf der Bühne. Mit über 600.000 Hörern auf Spotify und ihrem neuesten Album auf dem Kult-Label Luaka Bop sind die beiden ehemaligen Schulkollegen auf dem besten Weg, internationale Stars zu werden. Ein Muss für Fans anspruchsvoller, handgemachter Musik!

Donnerstag, 19.3.2026, 20:00, Stadtsaal Güssing

Eintritt: 15 EUR, Ticketreservierungen werden mit dem QR-Code bzw. unter zuilousn@gmail.com entgegengenommen!

Ein Plakat für ein Konzert von Bremer/McCoy (DK) am 19. März 2026 um 20:00. Zwei Männer stehen in einem nebligen Wald. Der Eintritt beträgt EUR 15.

🌿 HAPPY MINDS

Belastungsempfinden junger Menschen in unserer hyperkomplexen Welt –
und die Frage, was wir dagegen tun können

Junge Menschen erleben ihr Leben zunehmend als komplex und belastend. Sorgen um psychische Gesundheit nehmen zu, der Wunsch nach Entlastung wächst.
Mag.a Dr.in Beate Großegger beleuchtet aktuelle Entwicklungen und diskutiert, ob Detox-Strategien und bewusste Vereinfachung helfen können. Ein Vortrag mit Impulsen für Jugend- und Gesundheitsarbeit – und Raum für Austausch.

💻 Online, anonym & kostenlos
🗓 Di. 24.03.2026 | 18:00–19:30 Uhr
🔗 Zoom-Link:
https://zoom.us/j/99847510499?pwd=KUQrwcKmv9rbzaOVsjrumahbT7wilx.1
❗ Keine Anmeldung erforderlich

#vhsburgenland #wirsindwosiesind #bildungfüralle #happyminds #mentalegesundheit #jugend #gesellschaft #onlinevortrag

Ein Poster mit einer Aquarelldarstellung von vier jungen Menschen. Der Hintergrund ist eine Stadtlandschaft. Der Text lautet 'Happy Minds Belastungsempfinden junger Menschen in unserer komplexen Welt Online Anonym Kostenlos'.

🦋🍃🌞𝐅𝐥𝐮𝐫𝐫𝐞𝐢𝐧𝐢𝐠𝐮𝐧𝐠 𝐢𝐧 𝐑𝐨𝐬𝐞𝐧𝐛𝐞𝐫𝐠
Vor kurzem fand bei Sonnenschein und Wind die Flurreinigung in Rosenberg statt. Zahlreiche Rosenbergerinnen und Rosenberger beteiligten sich und leisteten einen wichtigen Beitrag für eine saubere Umwelt. Nach getaner Arbeit klang der Nachmittag bei einer gemeinsamen Jause und guten Gesprächen gemütlich aus. Ein herzliches Dankeschön an alle Helferinnen und Helfer für ihren Einsatz!

Eine Gruppe von Menschen posiert für ein Foto im Freien mit einer Kirche und einem Baum im Hintergrund, einige mit Schaufeln und andere auf Schubkarren sitzend.

Herzliche Einladung zur Passionsmusik in der Basilika Güssing, am Sonntag, 22. März 2026 um 17:00 Uhr. Einführende Worte: Pater Anton Bruck OFM.

Das Bild ist ein Plakat für eine Passionsmusik-Veranstaltung in einer Basilika am 22. März 2026. Aufgeführte Komponisten sind Bruckner, Bach, Franz, Haydn, Heitzmann und Stangl. Die Veranstaltung mit Stadtchor Gussing und Dr. Katharina Furpass an der Orgel wird von Dir. Franz Stangl musikalisch geleitet.

🏰 Vor kurzem auf Burg Güssing eröffnet: VIELE BLICKE, EINE BURG 🏰
In der Sonderausstellung „Viele Blicke, eine Burg – Fotografische Perspektiven auf Burg Güssing“ präsentieren fünf Fotografen ihre ganz persönlichen Sichtweisen auf das historische Wahrzeichen.

Mit Arbeiten von Ernst Breitegger, Robert Brünner, Ossy Hager, Erwin Muik und Martin Pfeiffer.

📍 Burg Güssing

🗓 Ausstellung: 14. März bis 31. Oktober 2026
🕙 Dienstag bis Sonntag, 10:00–17:00 Uhr
(Montag geöffnet, wenn Montag oder Dienstag ein Feiertag ist)

#BurgGüssing #Fotoausstellung #VieleBlickeEineBurg #KulturBurgenland #Sonderausstellung #Fotografie #KunstUndKultur #Güssing

Eine Gruppe von Männern und Frauen steht in einer Kunstgalerie und lächelt für ein Foto. Einige tragen Brillen, Schals und formelle Kleidung. Kunstwerke hängen an den Wänden hinter ihnen.
Drei Männer stehen in einer Kunstgalerie mit gefliesten Böden, tragen Jacken und Brillen. Sie stehen vor zwei großen Gemälden an der Wand, eines zeigt eine Stadt bei Nacht und das andere eine Burg in der Ferne.
Eine Gruppe von Menschen steht in einer Kunstgalerie, einige lächeln und diskutieren die Gemälde an der Wand. Ein Mann hält ein Weinglas.
Drei Personen stehen vor einem großen gerahmten Bild an einer weißen Wand, das eine Stadtlandschaft unter einem Nachthimmel zeigt.+3
Amtliche Mitteilung

👉🐣🐂🍀𝐆𝐫𝐞𝐞𝐧 𝐂𝐚𝐫𝐞 – 𝐆𝐥ü𝐜𝐤𝐬𝐛𝐫𝐢𝐧𝐠𝐞𝐫 𝐋𝐚𝐧𝐝𝐰𝐢𝐫𝐭𝐬𝐜𝐡𝐚𝐟𝐭

👉Die Initiative „Green Care“ macht auf aktiven landwirtschaftlichen Betrieben Kinder bis Senior:innen sowie Menschen, die Auszeit suchen bis hin zu Menschen mit Behinderungen glücklich.

👉Green Care baut eine Brücke zwischen der Land- & Forstwirtschaft und der Bevölkerung. Die Initiative unterstützt – in Zusammenarbeit mit der öffentlichen Hand und Sozialträgern – Landwirt:innen, ihre soziale Kompetenzen auszubauen, sinnstiftende Aufgaben auf ihren Betrieben zu implementieren und damit den Zusammenhalt im ländlichen Raum zu erhöhen.
👉Alle weiteren Infos und Kontakte zu diesem Projekt finden Sie auf der Website der Stadtgemeinde Güssing unter https://www.guessing.co.at/index.php/news/1156-green-care-gluecksbringer-landwirtschaft

Green Care-Plakat zeigt eine Frau, die nach einem Baum greift, mit dem Text 'Neue Perspektiven für Bauernhöfe und Gemeinden'. Green Care verbindet Landwirtschaft mit sozialer Betreuung, bietet qualifizierte Betreuung für Senioren, tiergestützte Aktivitäten und herausfordernde Aufgaben für Landwirte. Es schafft Mehrwert für Gemeinden durch mehr Betreuung, Beschäftigung und Zusammenhalt.